Te koop Half vrijstaand huis Costa Del Sol El Coto € 650.000,-
Discover this impressive semi-detached house for sale in the prestigious area of El Coto, a unique property that combines comfort, privacy and spacious interior and exterior spaces. With outdoor areas of 297 m², this home offers a magnificent saltwater private pool and generous outdoor areas perfect for enjoying the Mediterranean climate, hosting meetings or simply relaxing with views of the Sierra de Mijas.
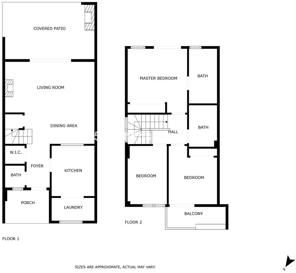
The house, with 100 m² distributed over two floors, has a functional and welcoming design. On the main floor, we find a bright living-dining room with direct access to the outside, a modern equipped kitchen and a guest toilet. On the upper floor, there are three bedrooms, all with built-in wardrobes, and two full bathrooms, offering comfort and spaciousness for the whole family.
In addition, the property has a practical private parking for two cars, which adds extra comfort and security. Located in a quiet and well-connected residential area, this semi-detached house is ideal for those looking for quality of life, proximity to services and the privilege of having their own outdoor space with a swimming pool.
Don't miss the opportunity to live in one of the most sought-after areas of Mijas. Contact us and schedule your visit today!
meer info