Te koop Duplexwoning Costa Del Sol Artola € 849.000,-
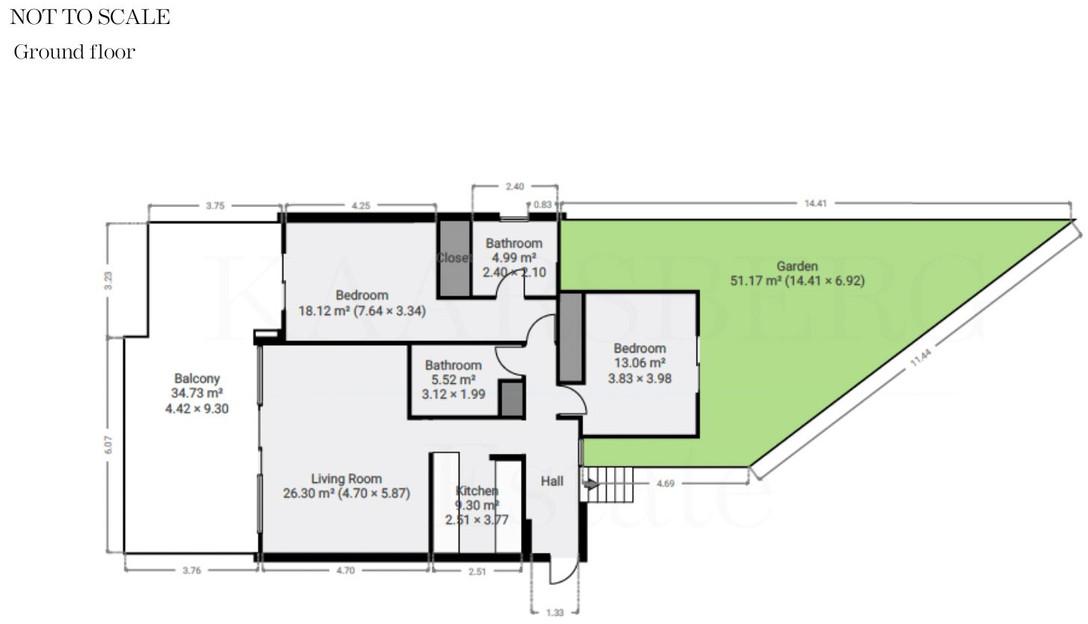
Welcome to this impressive ground floor apartment in the prestigious Artola Homes development, offering four bedrooms, three bathrooms, and an exceptional sense of space across two levels.
Perfectly situated on the edge of the golf course, the property enjoys open views of the fairways, creating a serene and picturesque backdrop for everyday living.
The main floor features a bright and spacious open-plan living and dining area, where large sliding doors connect seamlessly to the private terrace - the ideal spot to relax while taking in the sweeping golf views.
The sleek, fully fitted kitchen blends modern style with everyday practicality, making it a natural hub of the home.
On this floor you’ll also find the elegant master bedroom with its own en-suite bathroom and direct access to the terrace, alongside another well-proportioned bedroom with access to a private garden, and a second bathroom for guests and family alike.
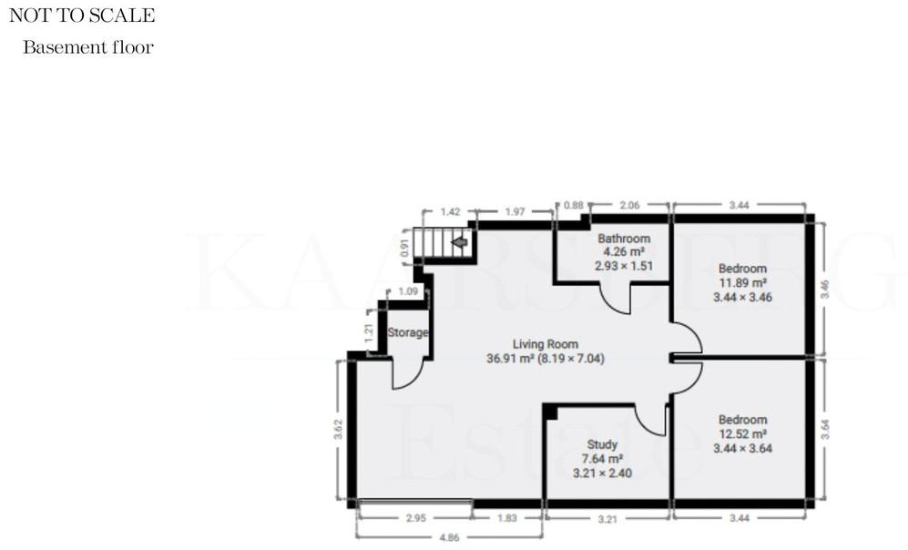
On the lower level, the apartment opens up into an expansive multi-purpose living space, currently used as a lounge but offering endless possibilities as a games room, home cinema, or family retreat.
Two further bedrooms are located here, together with a third room currently serving as storage but easily adaptable as a gym, office, or hobby room.
A smaller storage room provides additional convenience, keeping the living spaces uncluttered and practical.
Thoughtfully designed and finished to a high standard, this property combines the convenience of ground floor living with the generous proportions of a full family home.
As part of Artola Homes, residents also enjoy outstanding communal facilities including landscaped gardens, a large swimming pool in infinity style with a separate children’s pool, a playground, and secure parking. For health and wellness, there’s also an indoor pool, a modern gym, and spa facilities, making the community as relaxing as it is practical. All of this is set within a gated environment that ensures both comfort and peace of mind.
Ideally located close to golden beaches, golf courses, shops, and restaurants, Artola Homes also benefits from being just a stone’s throw from the charming Cabopino marina, with its vibrant atmosphere, excellent dining, and one of the most picturesque harbours on the Costa del Sol. Whether as a permanent residence, a holiday retreat, or a smart investment, this apartment is a property that truly stands out.
meer info